Product 1

SIGMA Cargo Lift | Cargo Lift In Bangladesh

Model: HGM-F07

Specifications:

Ceiling:
Stainless steel
Ventilation: Circular fan
Cabin Wall: Stainless steel
Cabin Door: Stainless steel
Handrail: No
Floor: Chequered plate steel

Catalog Send Inquiry

Product Details


SIGMA Cargo Lift | Cargo Lift In Bangladesh

 

Freight elevators typically operate at lower speeds, ranging from 50 to 200 fpm (0.25 to 1.0 m/s), prioritizing safety and stability during the movement of heavy loads. The maximum vertical travel distance varies significantly by elevator type. Hydraulic systems are generally suited for low-rise applications (under 60 feet), while traction and MRL systems are designed for medium to high-rise buildings, capable of travels up to 300 feet or more.

Durable Materials and Advanced Elevator Components

The longevity and reliability of cargo lifts stem from their robust construction and high-quality elevator components. Key materials and components include 14-gauge steel wall panels, specially reinforced car gates, solid metal tops, and non-skid steel platforms. The hydraulic system components, such as hydraulic cylinders and leaf chains, are critical. The use of imported pumping stations, oil cylinders, and seals is often highlighted for ensuring stable operation, preventing issues like unstable oil pressure or oil leakage, and extending the service life of the lift.

Versatile Door Types and Reinforced Elevator Car Designs

To accommodate various loading methods and tough working conditions, freight elevators offer versatile door types, including vertical, manual bi-parting doors or power-operated doors. The elevator car designs are inherently reinforced to withstand impacts and heavy use, often incorporating features like vandal-resistant fixtures for added durability in demanding environments.

Key Considerations When Buying:

    • Load Capacity: Ranges widely (500kg to 10,000kg+).

    • Speed: Varies based on needs (0.25 m/s to 1.0+ m/s).

    • Travel Height: Number of floors/stops.

    • Car Size & Door Type: Dimensions, manual/automatic doors.

    • Drive System: Hydraulic (common for low/mid-rise) or Traction (common for higher rise).

    • Safety Features: Compliance with Bangladesh National Building Code (BNBC) and international standards (EN, ASME) is crucial. Look for BSTI certification.

    • After-Sales Service & Maintenance: Critical for safety and longevity. Choose a reputable supplier with a strong service network.

    • Budget: Local brands generally offer lower upfront costs than major international brands.

 

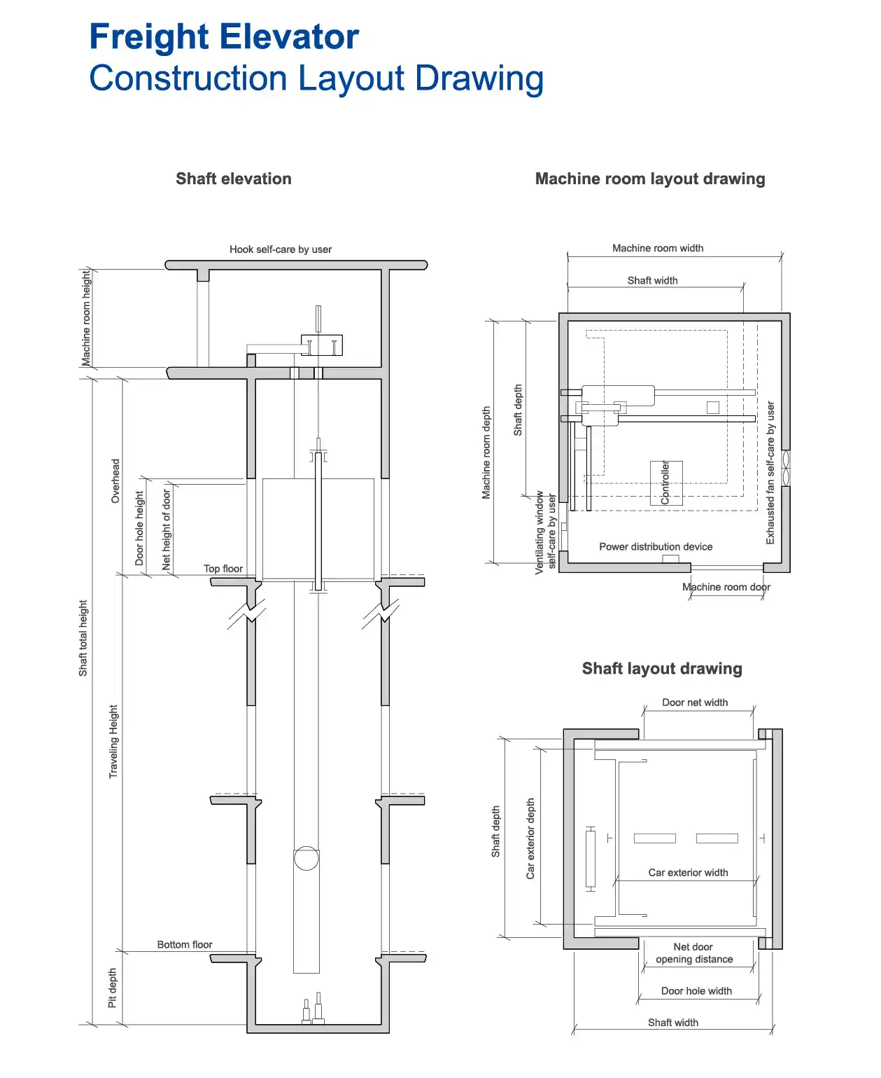
Drawings & Parameters:

freight lift drawings & Parameters

Related Products


Send Inquiry


×